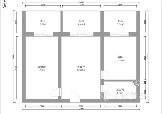
案例介紹
北京市 - 順義區(qū)
部隊(duì)家屬院
戶型圖












