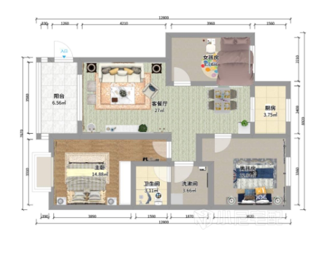
案例介紹
山東省 - 聊城市 - 東昌府區(qū)
水晶城
戶(hù)型圖







