案例介紹
內蒙古自治區(qū) - 呼和浩特市 - 新城區(qū)
東方科苑
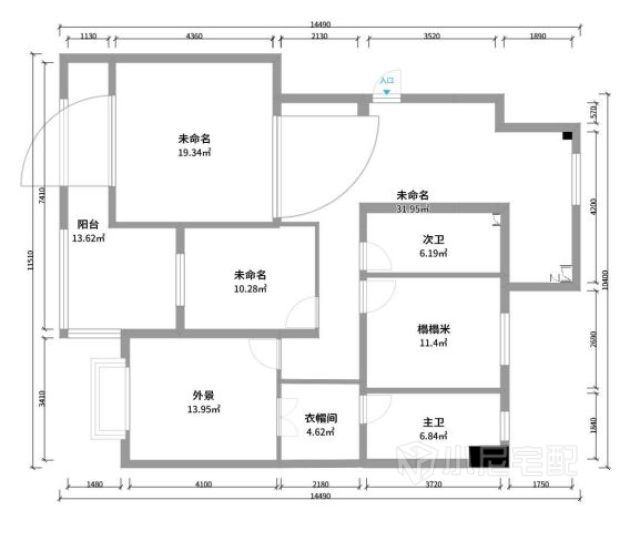
戶型圖








免費申請設計
設計師上門服務全程免費,禁止以任何形式收取費用。