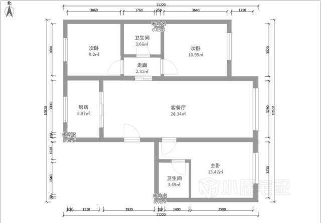
案例介紹
北京市 - 順義區(qū)
和悅居
戶型圖











