案例介紹
河北省 - 保定市 - 淶水縣
潤城苑
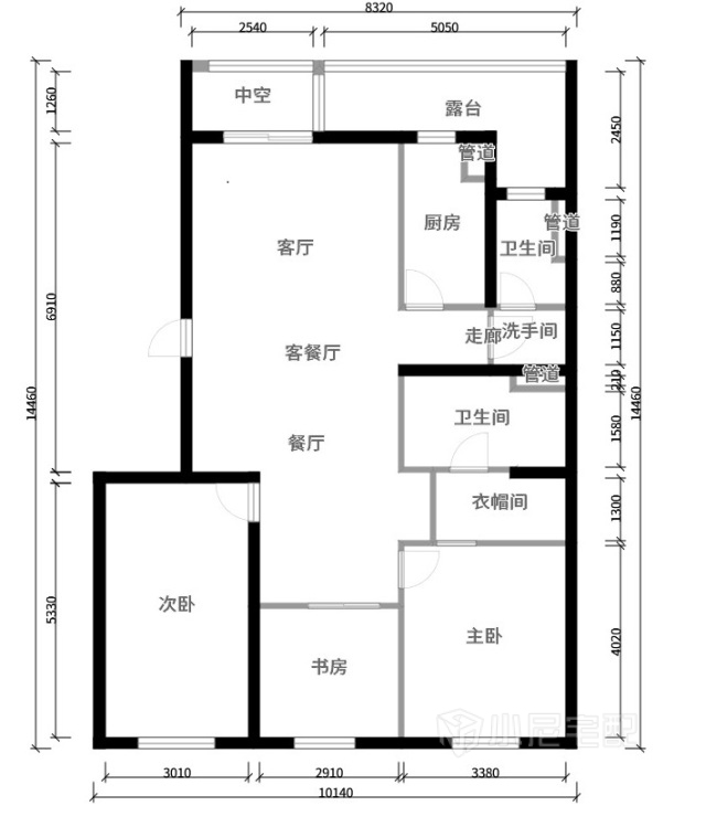
戶型圖








免費申請設計
設計師上門服務全程免費,禁止以任何形式收取費用。