案例介紹
河北省 - 保定市 - 唐縣
唐堯新城
簡單美麗,舒適而不繁瑣,經(jīng)濟實惠。
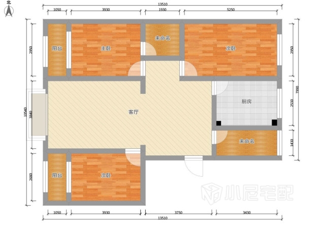
戶型圖

客廳

餐廳

主臥

次臥

次臥書桌

次臥

次臥

廚房
免費申請設計
設計師上門服務全程免費,禁止以任何形式收取費用。