案例介紹
河北省 - 廊坊市
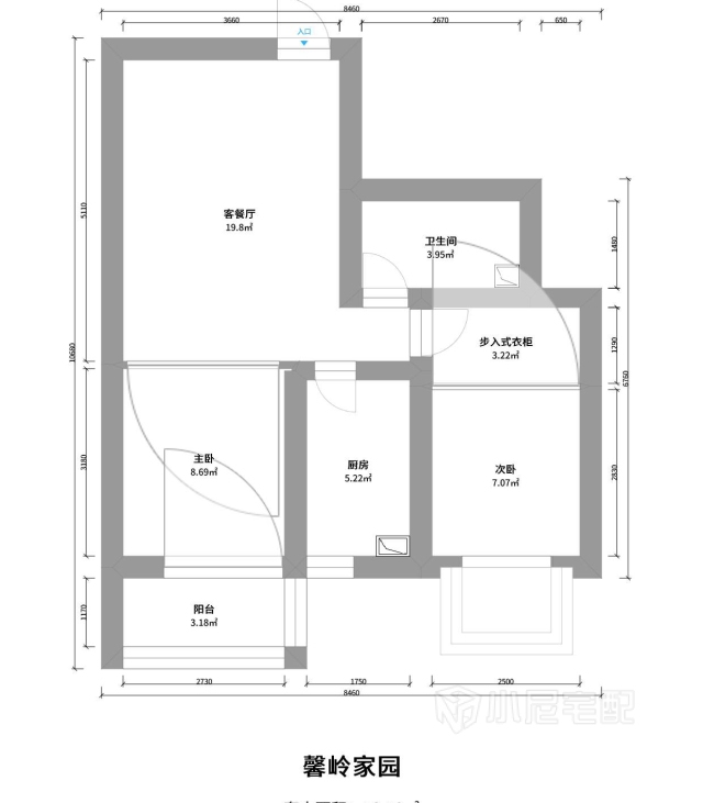
鑫嶺家園
戶型圖

進門處衣柜鞋柜一體多功能柜兼顧兩者,既增加儲物空間也滿足業(yè)主喜歡看書的愛好

電視墻采用白樺樹背景壁紙,配合北歐風格家具,簡約不簡單

次臥室用整體推拉門做隔斷,增加客廳采光通風

次臥放置800寬小衣柜合理利用空間

主臥為了照顧老人從中間安裝推拉門隔斷保暖性更好

主臥飄窗合理利用享受夏日暖暖的日光

廚房白色墻磚配合白色櫥柜干凈整潔

衛(wèi)生間整體干凈整潔原木色洗漱臺增加色彩省得單調(diào)
免費申請設計
設計師上門服務全程免費,禁止以任何形式收取費用。