案例介紹
江蘇省 - 蘇州市 - 吳中區(qū)
陽光水榭花園
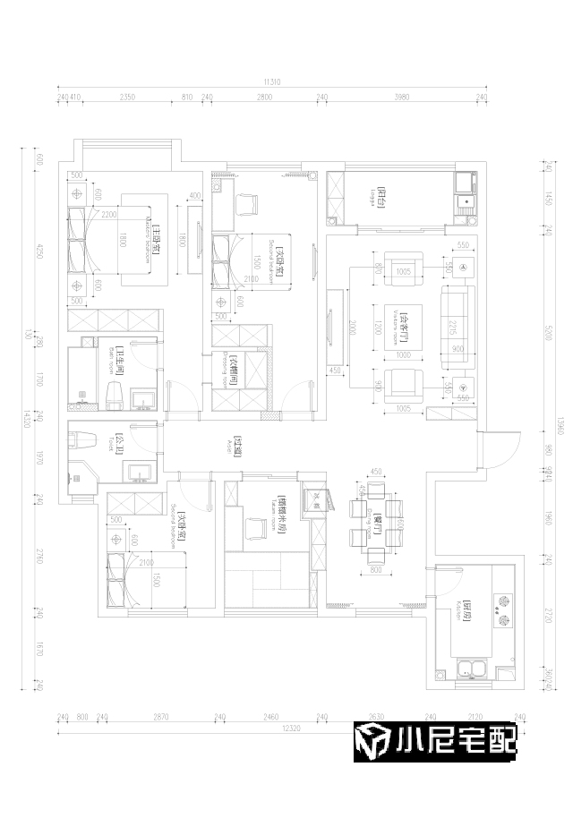
戶型圖

客廳

餐廳

主臥

主衛(wèi)

次臥

兒童房

多功能房(一)

多功能房(二)

廚房

生活陽臺

客衛(wèi)
免費申請設計
設計師上門服務全程免費,禁止以任何形式收取費用。