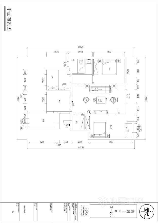
案例介紹
山東省 - 濟(jì)南市 - 長(zhǎng)清區(qū)
中建蘭園
戶型圖








