案例介紹
河北省 - 唐山市 - 路北區(qū)
裕華嘉苑
拋開世事煩瑣,回歸簡約家居
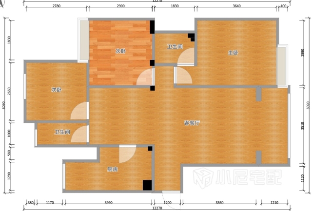
戶型圖

玄關

客廳

客廳

餐廳

主臥

次臥

榻榻米

廚房
免費申請設計
設計師上門服務全程免費,禁止以任何形式收取費用。