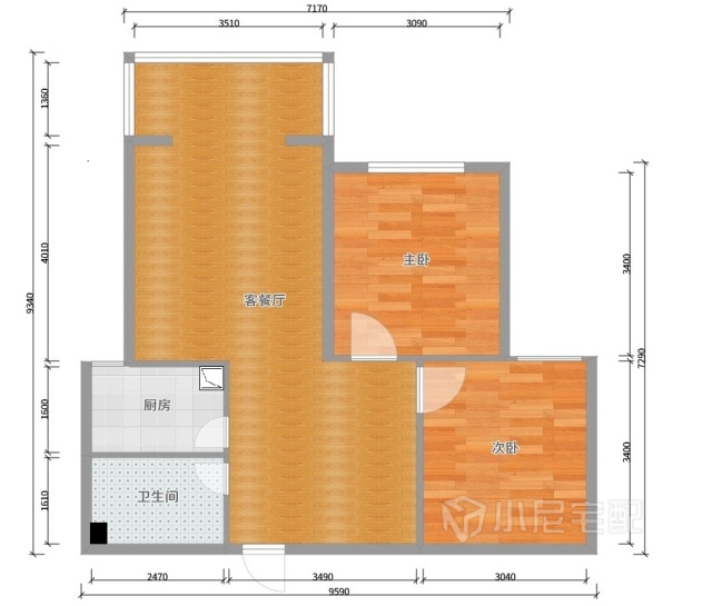
案例介紹
河北省 - 保定市 - 淶水縣
藍(lán)波圣景
戶型圖








