案例介紹
山東省 - 聊城市 - 東昌府區(qū)
孟達國際
記憶中的溫暖、、、、、、、、、、、、、、、
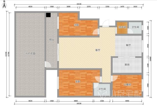
戶型圖








免費申請設計
設計師上門服務全程免費,禁止以任何形式收取費用。